365ÉÏÊй«Ë¾

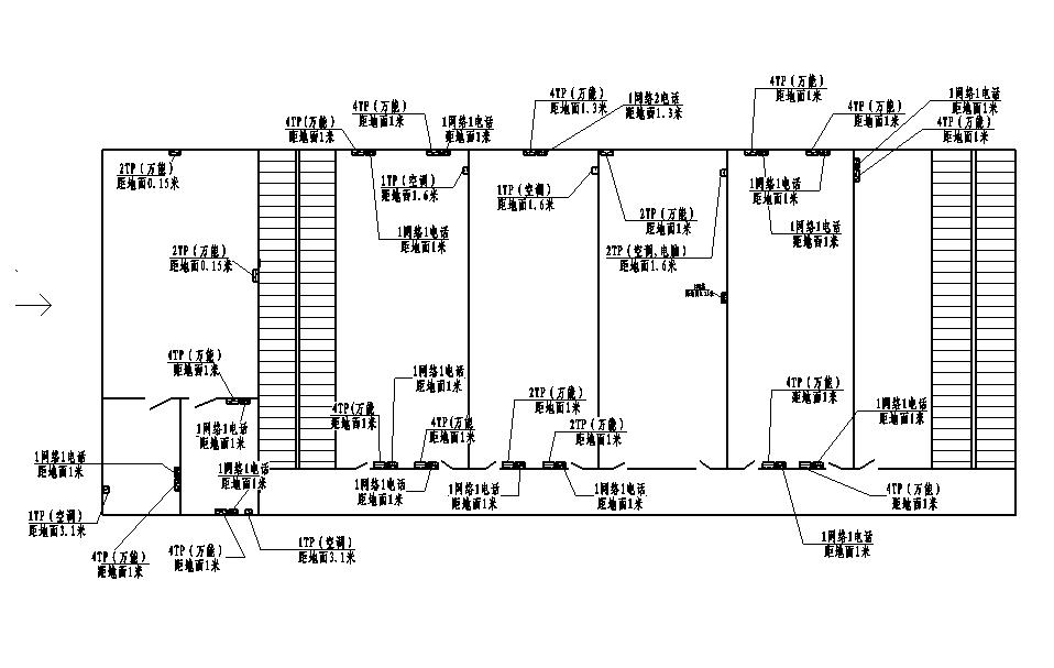
Ðн¡Â¥3Â¥ÍøÂç²¼ÏßµãλÖòο¼Í¼

ȪԴ£ºÍøÂç ×÷Õߣº²»Ïê ±àÉó£º Ðû²¼Ê±¼ä£º2010-08-15 ä¯ÀÀ´ÎÊý£º ´Î ¡¾×ÖÌ壺С ´ó¡¿
·ÖÏíµ½£º

Ðн¡Â¥3Â¥ÍøÂç²¼ÏßµãλÖòο¼Í¼

20100815204329485

¸½¼þÏÂÔØ£ºÐн¡Â¥3Â¥ÍøÂç²¼ÏßµãλÖòο¼Í¼.rar

¡Á

Óû§µÇ¼

¡¾ÍøÕ¾µØÍ¼¡¿